The proof is in the viewing.
26 Esplanade
1
Garden Residence
Ground
Available
Occupied
2
Beach & Bay View
Level 1
Available
Occupied
3
Sub Penthouse
Level 2
Available
Occupied
4
Penthouse
Level 3
Available
Occupied
28 Esplanade
1
Garden Residence
Ground
Available
Occupied
2
Garden Residence
Ground
Available
Occupied
3
Bay View Residence
Level 1
Available
Occupied
4
Bay View Residence
Level 1
Available
Occupied
5
Sub Penthouse
Level 2
Available
Occupied
6
Sub Penthouse
Level 2
Available
Occupied

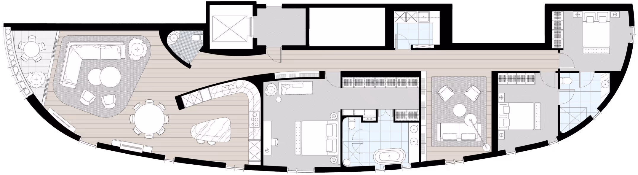
Garden Residence
26 Esplanade
,
Ground
The Garden Residence is defined by its generous outdoor spaces and landscaped terraces. Designed for easy entertaining and everyday calm, it offers a rare sense of openness just moments from the bay.
0
1
2
3
4
5







Bay View Residence
28 Esplanade
,
Level 1
The Bay View Residence captures uninterrupted outlooks across the water, framed by sweeping curves and full-height glazing. Generous living spaces open to a private terrace, while refined finishes and thoughtful design bring ease and elegance to every moment at home.
0
1
2
3
4
5








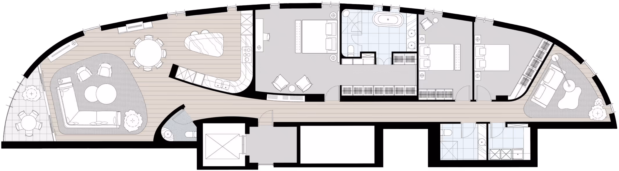
Sub Penthouse
28 Esplanade
,
Level 2
The Sub Penthouse Residence offers sweeping bay views and beautifully resolved interiors. Curved forms and full-height glazing bring light and movement into each space, while refined finishes and thoughtful proportions create a sense of quiet sophistication above the shoreline.
0
1
2
3
4
5

